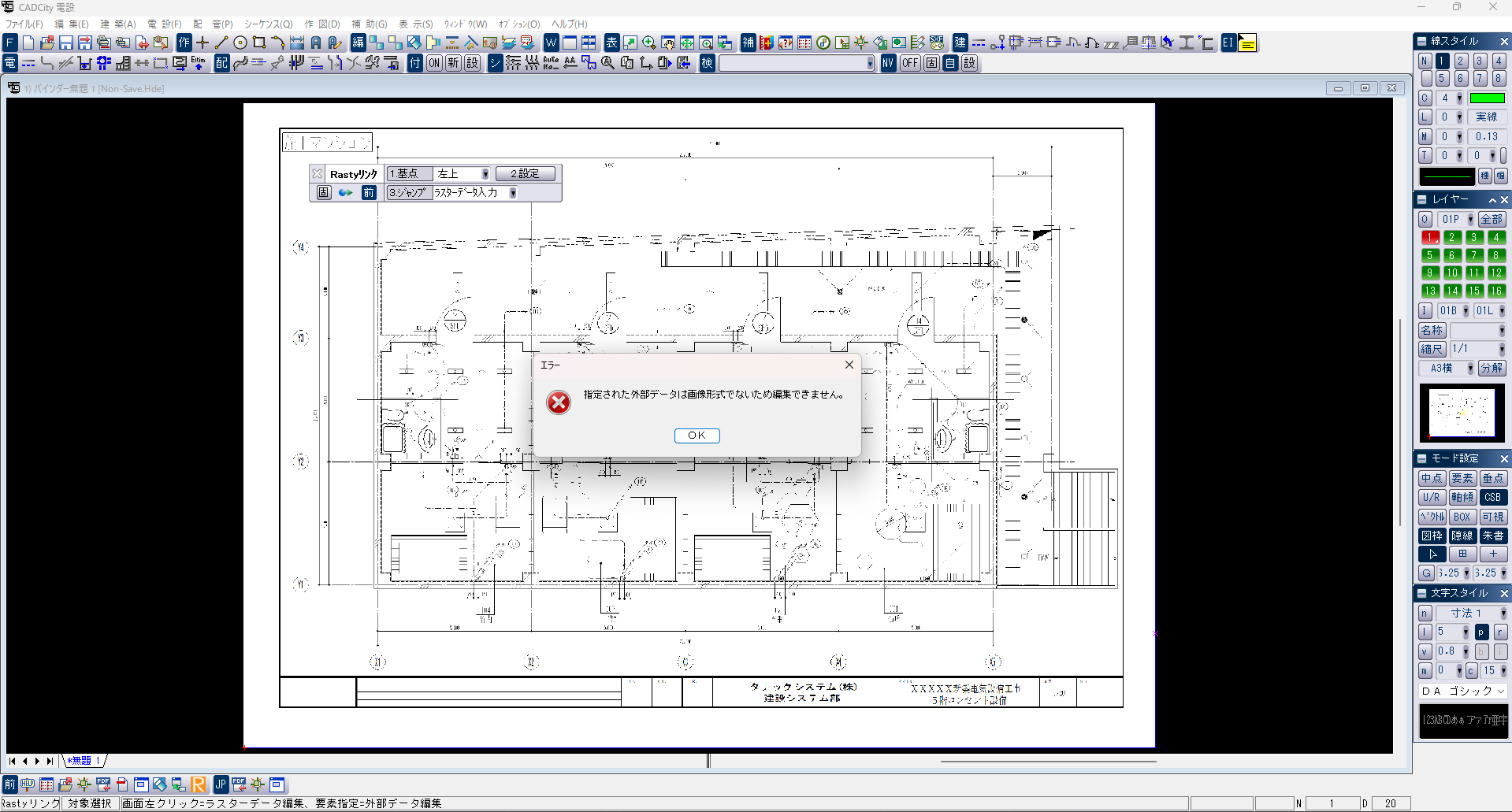
「RastyリンクでPDFを編集しようとすると、『指定された外部データは画像形式でないため編集できません』と表示されてしまって編集できない…」
とお困りではありませんか?

「Rastyリンク」は、画像データを編集できる機能となっています。そのため、「外部データ貼付オプション」を使ってPDFファイルとして貼り付けた場合、「Rastyリンク」を使って編集を行うことができません。
編集を行うためには、一度、外部データ(画像データ)に変換する必要があります。
今回は、PDF図面を外部データ(画像データ)に変換するやり方について詳しくご説明いたします◎
目次
1.「外部データ貼付」でPDFをCADCityに配置する
・PDFの貼り付け範囲を指定する方法
・3つの貼り付けモード(固定・均等・自由)の使い分け
2.PDFデータを画像データに「変換」する
3.ご不明な点はこちらから!
※PDFをRastyリンクで編集できるように変換する作業は「外部データ貼付オプション」、PDF図面自体を編集したい場合は「Rastyリンク」があると便利です。今回はこの2つのオプションを使った方法をご説明いたします。
①「外部データ貼付」でPDFデータをCADCityに貼り付ける
1.「オプション」>「外部データ貼付」>「データ貼付」を選択し、貼り付けたいPDFファイルを選択します。

2.選択すると下記のような画面が出るので、貼り付けたい範囲が問題なければ「完了」をクリックします。

貼り付けたい範囲を指定したい場合は、ウインドウ下部にある赤い四角形のアイコンをクリックした後に、PDF上の赤枠を調整して範囲を指定していきます。

3.下記のようなCSBが出てきますので、それぞれお好みのモードを選択して貼り付けます。

・「1.固定」の場合
└貼り付ける外部データ(PDFファイル)のサイズそのままで貼り付けられます。

・「2.均等」の場合
└貼り付ける外部データ(PDFファイル)の縦横比が固定された状態で貼り付けられます。

・「3.自由」の場合
└外部データ(PDFファイル)のサイズを自由に変更できます。始点と終点を自由に設定します。

②外部データ(PDFファイル)を外部データ(画像データ)に変換する
1.「オプション」>「外部データ貼付」>「データ変換」を選択

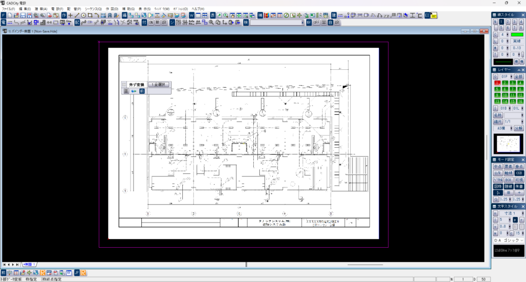
2.下記のような画面が出るので、貼り付けたPDFデータを枠で囲むか、すべて変換したい場合は「1.全選択」をクリックしてデータを選択します。

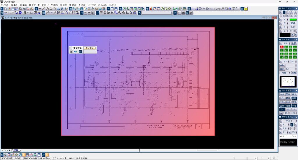
3.データが選択されると、下記のような状態になるので、問題がなければ右クリックをしてデータ変換を実行します。

変換を行うと、外部データ(PDFデータ)から「外部データ(画像データ)」に変わるので、「Rastyリンク」を使って編集ができる状態になります◎
いかがでしたでしょうか。
上記方法を試してもうまくいかなかった…という方は、下記URLよりお気軽にお問い合わせください。
「お問い合わせフォーム」はこちらから!
■各製品のページはこちらから
★CADCity建築★
●商品ページはこちらから!
★CADCity電設★
●商品ページはこちらから!
★CADCity電設LS★
●商品ページはこちらから!
★CADCity配管★
●商品ページはこちらから!
★CADCityシーケンス★
●商品ページはこちらから!


