「PDF図面をCADCityに取り込んでみたけど、うまく変換されなかった…」
「紙をスキャンしたPDF図面をCADCityに取り込んだけど、図面の線が見づらい…」
・・・となったことはありませんか?
CADCityのPDF変換機能は、PDFファイル(特に、複合機でスキャンしたPDF図面)によってはうまく変換できない場合があります。
そんなときは、PDFの図面を画像として保存しなおした状態で、画像として貼付を行うという方法をお試しいただければと存じます。今回は、その裏ワザ方法について詳しくご説明していきます!
目次
1.PDF図面を画像として保存しなおす方法
2.「外部データ貼付」で保存したデータを貼り付け
・貼り付けモード(固定・均等・自由)の使い分け
3.ご不明な点はこちらから!
①PDF図面を画像として保存しなおす方法
1.PDF図面を開き、下記のキーボードのキーを押します。
・「Windows」キー(キーボードの左下にある四角形が描いてあるキー)と「Shift」キーを押しながら、「S」キー

2.キーを押すと、下記のような少し暗い画面になります。

3.上記の状態になったら、PDFの切り取りたい部分を枠で選択します。

うまく選択されると、「スクリーンショットをクリップボードにコピーしました」という表示が画面右下の方に出てきます。

4.Outlook(メール)、WordやExcelなどを立ち上げ、新しいメールや新しいWord・Excelファイルを作成したあと、「Ctrl」キーを押しながら「V」キーを押します。

うまくいくと、上記のように先ほど切り取った画面が貼り付けられます。
5.貼り付けられた画像を一度クリックした後、右クリックをすると下記画像のような表示が出てくるので、「図として保存」を選択します。

6.名前を付けて、「.png」または「.jpeg」形式で保存してください。
②「外部データ貼付」で保存したデータを貼り付け
※画像データの貼り付け作業は、「外部データ貼付オプション」があると便利です。今回はこのオプションを使った方法をご説明いたします。
1.CADCityを起動し、「オプション」>「外部データ」>「データ貼付」を選択

2.先ほど保存した画像データを選択
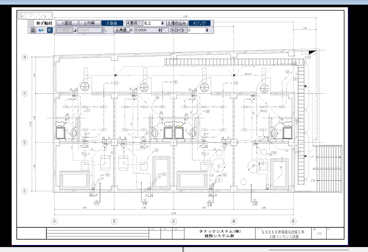
3.選択すると、下記のような貼り付け範囲の指定画面が出ますので、貼り付ける範囲が問題なければ「完了」をクリックします。

4.下記のようなCSBが出てきます。

・「1.固定」の場合
└貼り付ける画像データのサイズそのままで貼り付けられます。

・「2.均等」の場合
└貼り付ける画像データの縦横比が固定された状態で貼り付けられます。

・「3.自由」の場合
└サイズを自由に変更できます。始点と終点を自由に設定します。

今回のようにデータを貼り付けてその上から作図を行いたいという場合は、「2.均等」に設定いただき、枠の中に納まるように貼り付けていただくことをおすすめします。

いかがでしたでしょうか。
上記方法を試してもうまくいかなかった…という方は、下記URLよりお気軽にお問い合わせください。
「お問い合わせフォーム」はこちらから!
■各製品のページはこちらから
★CADCity建築★
●商品ページはこちらから!
★CADCity電設★
●商品ページはこちらから!
★CADCity電設LS★
●商品ページはこちらから!
★CADCity配管★
●商品ページはこちらから!
★CADCityシーケンス★
●商品ページはこちらから!


